Home
The settlement
Advantages
Kras
Demonstration unit
Units
Purchase
Geomancy
More
Create your own home
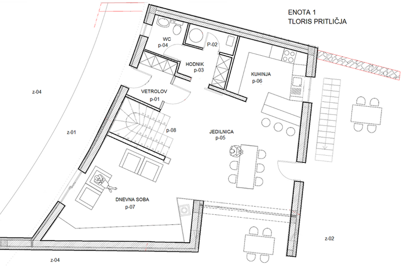
unit 1